Описание
Характеристики
Отзывы
Описание
Монография представляет собой наиболее полное в отечественной историографии описание проектирования, строительства и службы одного из самых знаменитых кораблей российского флота — броненосного крейсера «Рюрик». Проектирование корабля началось незадолго до заключения Портсмутского мирного договора между Россией и Японией, строился крейсер в Великобритании, на заводе фирмы «Vickers». Вплоть до вступления в строй линейных кораблей-дредноутов типа «Севастополь» «Рюрик» являлся самым большим кораблём Российского Императорского флота. Он заслуженно считался самым красивым боевым кораблём флота. После вступления в строй «Рюрик» принимал участие в походах «Гардемаринского отряда», затем вошёл в состав Бригады линейных кораблей Балтийского флота и до конца 1915 года был флагманским кораблём командующего флотом адмирала Н. О. фон Эссена, а затем вошёл в состав 1-й бригады крейсеров Балтийского флота. В годы первой мировой войны «Рюрик» принял участие в большинстве операций флота, в том числе в бою у острова Готланд. После заключения Брестского мира «Рюрик» участвовал в Ледовых походах Ревель — Гельсинфорс и Гельсинфорс - Кронштадт.
После сдачи на слом в 1923 году 203-мм башни крейсера были переданы Береговой обороне и установлены на кронштадтских фортах «Тотлебен» и «Обручев». Эти орудия активно участвовали в Советско-финляндской и Великой Отечественной войнах, обороне Ленинграда, операциях по прорыву и освобождению города от блокады.
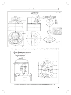
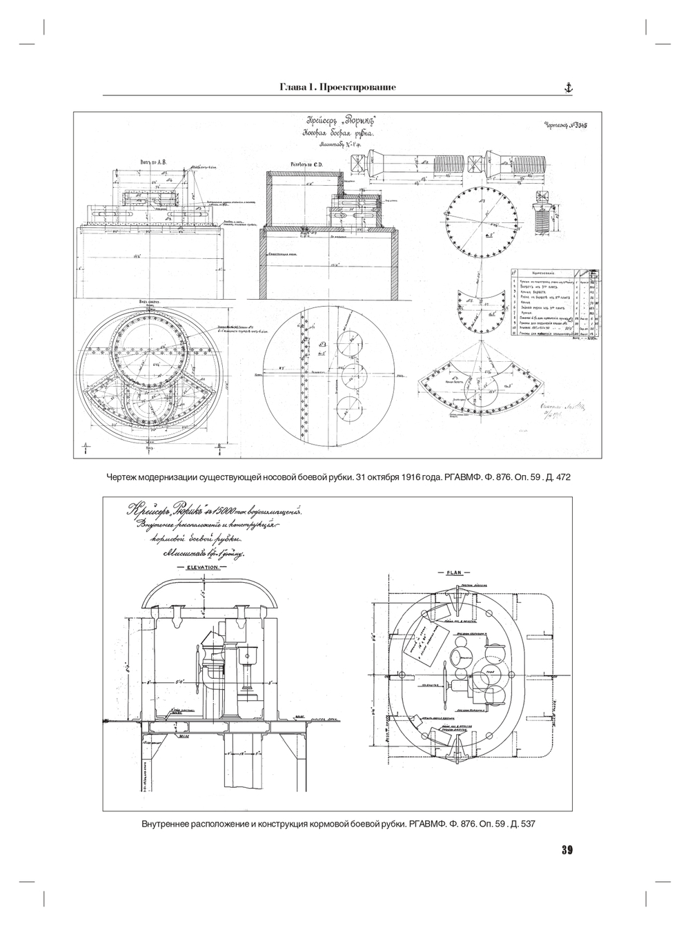
Монография иллюстрирована большим количеством фотографий и чертежей.
Характеристики
Автор
Скворцов А. В.
Количество страниц
232
Формат
210x290
Год издания
2024
Переплёт
твёрдый
Издательство
Морское наследие
ISBN
978-5-905795-79-4
Вес
0.82
Отзывы
Отзывов еще никто не оставлял
Аналогичные товары
Аналогичные товары
